the VoSS
Specifications
-
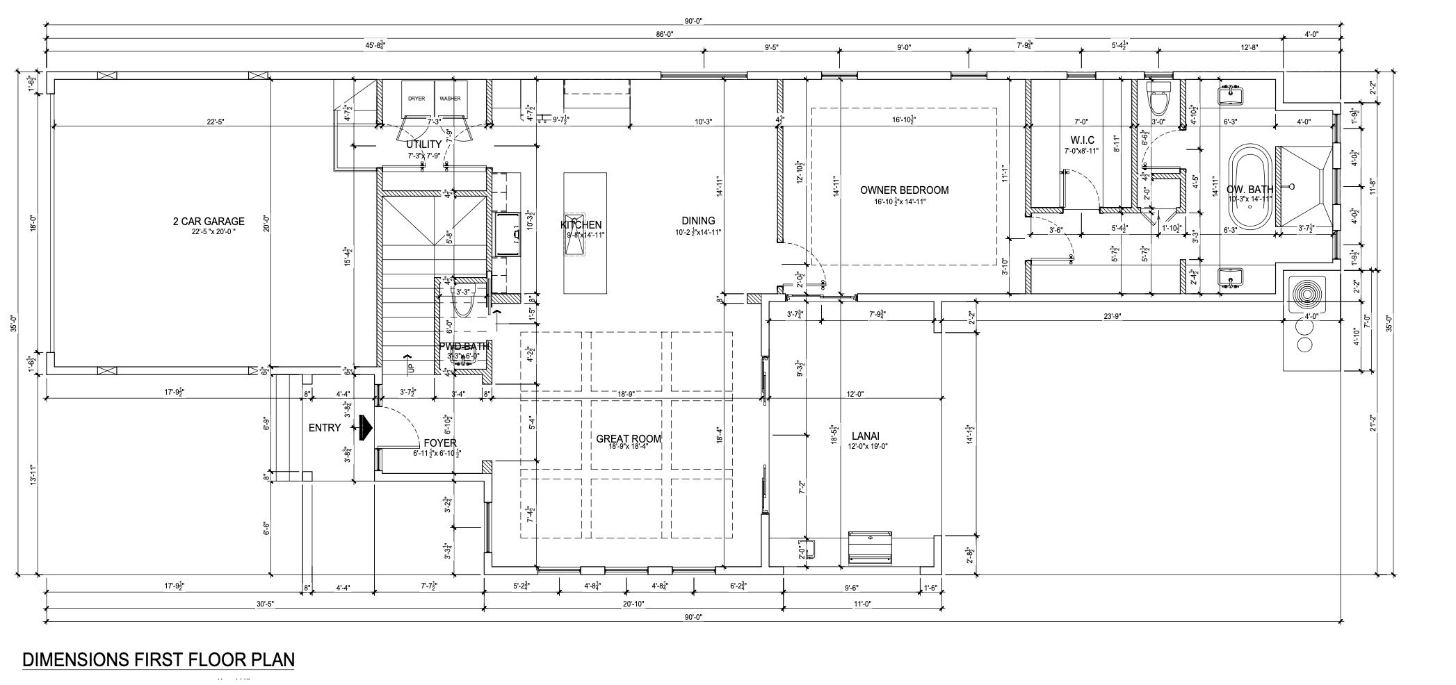
This roomy 6,237-square-foot stylish design is all about luxurious living. Tons of natural light floods in through large windows into tons of open & enclosed spaces that offer endless possibilities. Enjoy the spacious balconies, flex rooms, walk-in closets, the safe room & butler’s pantry, the wine cellar, multiple living areas, and more. This modern, geometric design gives the numerous amenities a chic and contemporary feel.
-
Experience the epitome of luxury with thoughtfully arranged bedrooms. The first floor hosts one bedroom, while the second floor accommodates another. On the third floor, you'll discover the owner's suite and a third bedroom. Each bedroom boasts an attached bath and provides access to outdoor spaces and balconies, defining the essence of luxury living.
-
Additionally, there are three versatile flex rooms that can serve as a movie room, gym, office & more! Customize and adapt the space to meet your unique needs and lifestyle.
-
Indulge in the luxury with ample relieving stations. With a total of 6 bathrooms, every floor offers this convenient feature. The 1st floor hosts 1 full bath, attached to a bedroom, along with a powder room and pool bath. On the second floor, another full bath is attached to a bedroom. The pinnacle awaits on the 3rd floor with the last 2 full bathrooms, including the exquisite owner's suite bathroom. Elevate your living experience with unparalleled elegance.
Modern outdoor entrance with white walls, black trellis, three tall narrow windows, and lush green bushes and plants.
Modern white multi-story house with large glass windows, balconies with glass railings, surrounded by palm trees and green lawn.
Modern white residential house with palm trees and a gray driveway
Modern white multi-story house with black-framed windows, surrounded by palm trees and green landscaping.
Modern courtyard with white walls, black-framed tall windows, black ceiling beams, and landscaped greenery including bushes and plants, with a stone pathway.
Crafting Your Unique Home
We take pride in offering the opportunity to craft your dream home. Our models serve as the canvas for your unique lifestyle, with every detail customizable to reflect your taste and preferences. From the layout to the finishes, we understand that your home is an extension of your personality. Consider our models to be a source of inspiration, a starting point for the creation of a residence that perfectly suits your needs.
Enduring Value
Timeless Quality
We are dedicated to setting a benchmark for quality in home construction. Each Northstar Home is meticulously crafted with a commitment to excellence, ensuring unparalleled durability and resilience that stands the test of time. We understand that our clients invest in more than just a house; they invest in a lifetime of comfort and safety. By prioritizing quality materials and innovative construction, we not only deliver homes that exceed industry standards but also provide our clients with the assurance that their investment will pay off in long-term satisfaction and efficiency. At Northstar, we build not just for today but for a lifetime.